Ga直到indhold

313899年硕士

SIHI flertrinspumper卧式离心泵设计,som øder de tekniske foreskrifter ISO 5199 / EN 25199。Pumperne er modullopbyggede for at reducere antallet af reservedele på forskellige størrelser。为skellige的加工厂将泵egner送到r。: fødevand, trykstining, højtryksvask和kondensat m.m.

Dimensionsomrade

Max 450 m³/ h

PN One hundred.
Temperaturomrade -10至+ 180ºC
Støbejern, Sejjern和Rustfrit

Produktinformation

Anvendelsesomrade

SIHI flertrinspumper卧式离心泵设计,som øder de tekniske foreskrifter ISO 5199 / EN 25199。Pumperne er modullopbyggede for at reducere antallet af reservedele på forskellige størrelser。为skellige的加工厂将泵egner送到r。: fødevand, trykstining, højtryksvask和kondensat m.m.

Kvalitetsikring

这是我最喜欢的。Maskindirektivet

Funktion & konstruktion

该泵的倾斜通过后的过程中漂移的流体,以满足泵的需要。Som noget unikt på flertrinspumpe markedet er SIHI's flertrinspumper udrustede med det patenterede selvjusterende balingssystem。黛特såkaldte“鼓和光盘”系统beskytter imod de aksielle k æ after der forekommer og dermed sikre en længere levetid。

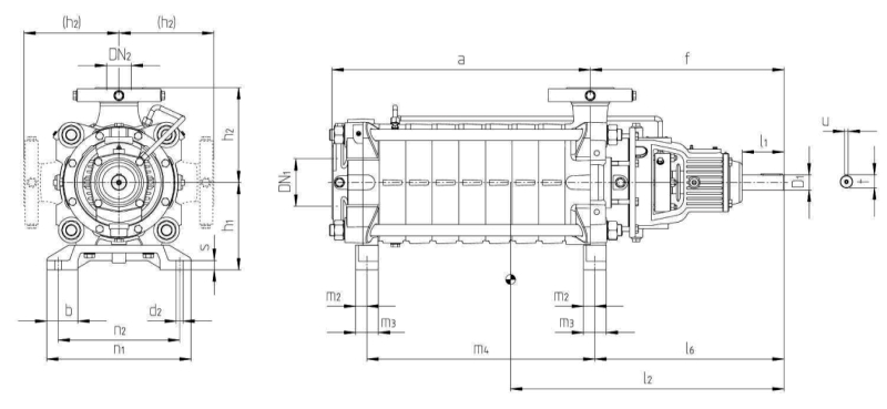
尺寸:i mm(公差:DIN 1686/GBT 17 på støbte dele)

圣ørrelse DN2 DN1 f h1 h2 b 年代 平方米 m3 n1 n2 d2 16 D1 I1 t U
50 50 One hundred. 415 185 200 70 21 32 45 335 300 13、5 385 28 60 31 8
65 65 125 510 230 250 82 25 38 60 380 320 18 490 40 110 43 12
One hundred. One hundred. 150 520 285 320 82 25 38 60 380 320 18 485 48 110 51 14

Mål forskellige trin

圣ørrelse Column1 50 Column2 65 Column3 One hundred.
指标 m4 一个 m4 一个 m4 一个
3. 314 390
4 320 400 399 475
5 390 470 484 560
6 460 540 569 645
7 410 450 530 610 654 730
8 465 505 600 680 739 815
9 520 560 670 750 824 900
10 575 615 740 820 909 985
11 630 670 810 890 994 1070
12 685 725 880 960
13 740 780 950 1030
14 795 835 1020 1100
15 850 890 1090 1170
16 905 945 1160 1240
17 960 1000 1230 1310
18 1015 1055 1300 1380

Tilslutninger

Pos Tilslutning

50

65/100

倾斜至压力计温度适中 G 1/2 G 1/2
2 倾斜至压力计温度适中 G 1/2 G 1/2
3 Tilslutning直到tætn G 1/4 G 1/4
7 æn博士 G 3/8 G 1/2
9 博士æn tætn G 3/8 G 3/4
K tølingætn indløb G 3/8 G 1/2
XIb K tølingætn udløb G 3/8 G 1/2
十二世 Cirkulation G 1/4 G 1/4
XX Smørrenipel M6 M6
第二十四 Måling af leje温度 G 1/4 G 1/4
XXX Vibrationsmaling(构建院系monteret) M8 M8

Kontaktpersoner

亨利克·a·尼尔森

markdschef泵/经理泵

+ 45 23 44 88 06
hn@armatec.dk

Henrik Mørch

Salgsingeniør泵/销售工程师泵

+45 24 96 26 64
hm@armatec.dk