gåtil indold.

Armatec Kugleventil AT3582E.

ARMATEC 2-DELT KUGLEVENTIL。全口径。Montageflange iht。ISO5211用于ENKELOGØKONOMISKMONERTING AF AKTUATOR。AntiStatisk OG吹出Sikret主轴。“消防安全”op til dn80。Anvendes tilafspærringafvæskeog luftarter。Ventilerne ER Designet Til Industriel Brug OG Anvendes Til Bl.a.七万,咄咄逼人的梅德尔,锡拉尔,奥普拉斯林米德勒,鹿料豪宅,奥利奥图石油公司。

尺寸område. DN15-200.
PN. PN16 / 40.
温度råde -29°C TIL 180°C
莱特勒 SS316.

Varianter.

artikelnummer. antal.
在AT3582E

produktinformation

anvendelse.

ARMATEC 2-DELT“全钻”Kugleventil Anvendes TILAFSPærringFeFeFlusteVæskerog Gasser,Der Forekommer i ProcesIndustrien。

kvalitetssikring.

ce-mærkning:ventilerne er ce pg atexmærket
(ATEX 94/9 II 2 GDC II A&IIB,1区和区21区)

Tekniske数据

Tilslutning:

AT3582E Med Flanger.

Tryktrin:

DN15-50 PN40(PN16),

DN65-200 PN16

Funktion og Konstruktion.

2-delt Kugleventil Med“Fire Safe”Design“。Antistatiskt Konstrueret Med”吹出“Sikret Spindel,Hvilket Forhinder Spindlen I在Blive Skudt UD Ved Trykslag。


BetJening:Vereilen Betgenes通过LåsbartHåndgreb,HVIS NaturligeBevægelse(90°)停止AF et Mekanisk AnslagPånershals。Ventilen Har标准ISO-Mo​​ntageFlange用于Enkel Montage Med Pneumatisk Eller Elektrisk Aktuator。

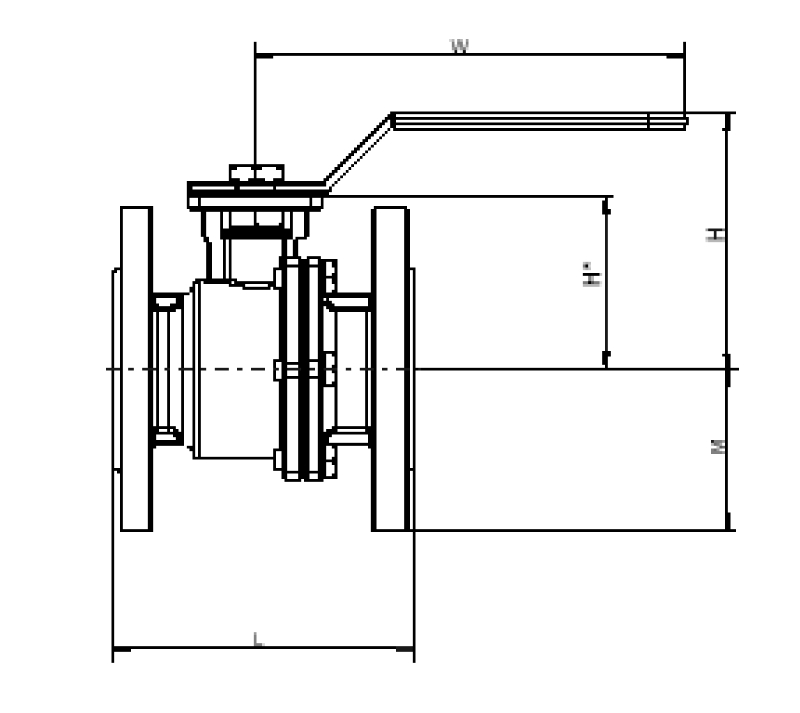
målogvægt.

DN. 15. 20. 25. 32. 40 50. 65. 80 100. 125. 150. 200.
l Indbygn。 115. 120. 125. 130. 140. 150. 170. 180. 190 325. 350. 400.
HHøjde. 91. 91. 103. 114. 114. 127. 156. 167. 182. 207. 272. 338.
h *højde. 54. 56. 63. 72. 78. 87. 107. 117. 132.
萤火虫 9. 9. 11. 11. 14. 14. 17. 17. 17.
kvs. 36. 59. 90. 159. 230. 418. 725. 1098. 1768年
ISO5211 F03 / 04. F03 / 04. F04 / 05. F04 / 05. F05 / 07. F05 / 07. F07 / 10. F07 / 10. F07 / 10. F10 F12. F14
瞬间NM. 8. 10. 20. 25. 35. 50. 70 85. 165. 305. 550. 960.
vægtkg. 2,3 2,9. 3,9. 5,3 6,7. 9. 14,0. 18,0. 24. 47. 68. 130.

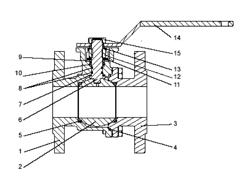
莱特勒

pos。 det 草本子
1 hus SS316(1.4408)
2 kugle. SS316(1.4408)
3. 佛陀 SS316(1.4408)
4. 哈拜克宁 格拉夫特
5. sædepakning PTFE 15%glasforstærket
6. 斯威尔特 SS316(1.4408)
7. sk PTFE 15%glasforstærket
8. O形圈 viton
9. mellemring. SS304.
10. Pakdåse. 格拉菲克
11. Fjederskiver. SS304.
12. pakdåse-møtrik SS304.
13. LåseBlik. SS304.
14. Håndtag. SS304.
15. Møtrik. SS304.

Tilbehørog Varianter

- OLIE OG FEDTFRI

kontaktpersoner.

肯尼斯霍尔曼

MarkedSchef Industri / Manager工业销售/ B.SC.mech.enginering.

+ 45 46 96 00 78
kh@armatec.dk.

KåreLarsen.

Salgschef - Maskiningeniør/销售经理

+ 45 40 54 95 00
kl@armatec.dk.

每个Thomsen.

Maskinmester / Btech&Mareng

+ 45 46 96 00 73
pt@armatec.dk.

Bruno Pedersen.

Salgsingeniør/销售工程师

+ 45 40 93 40 91
bp@armatec.dk.

Peter Eriksen.

实习生Salg - Teknisk支持/实习生。销售 - 技术。支持

+ 45 46 96 00 80
pe@armatec.dk.

Mogens Mouritzen.

实习生Salg - Indkøb/内部销售 - 采购

+ 45 46 96 00 75
mm@armatec.dk.

Daniel Sigsgaard.

SalgsingeniørIndusti/工业销售工程师

+ 45 46 96 00 96 / + 45 51 77 95 74
ds@armatec.dk.

雅各布Hemicke.

Maskinmester / Btechman&Mareng - Produktchef /产品经理

+45 40 74 95 93
jah@armatec.dk.

约翰尼霍德勒

Produktchef /产品管理器自动化

+ 45 46 96 00 79
jo@armatec.dk.