| 尺寸范围 | PN | 温度范围 | 材料 |
|---|---|---|---|
G 32-g 65, dn 100 |
16 | 1°C ~ 90°C | 装配单元 |
固定墙间距平行连接
-用于多喷嘴和活塞测量腔qn 2,5-10 / Q3 4-16的并联联轴器
-在q上获得更好的准确性最小值/Q1在较大的计量位置
-为了避免更换水表时供水中断
-为了延长水表的使用时间(qn2、5/Q3 4为10年,qn6 -10/Q3 10-16为5年)
-更换仪表时更容易操作
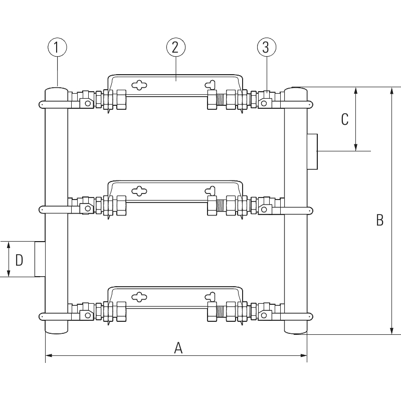
Armatec parallel coupling AT 7360A…-…配有连接箱和不锈钢水表控制台。
| 1 | 不锈钢圆管连接箱 |
| 2 | 水表控制台在7358-.. |
| 3. | 阀门在锌耐金属(AVZ) AT3605-.. |
| 4 | 控制台的可调出口联轴器有橡胶密封(NBR)。 |
| 压缩型,带有独立的压缩螺母 |
| 量 | 长度 | 测量, | 墙- - - - - - | |||||||||
|---|---|---|---|---|---|---|---|---|---|---|---|---|
| 在任何 | 问n | 问3. | 计 | 计 | 线程 | 一个* * | B | C | D | 距离 | 重量 | RSK-No |
| 7360 a2, 5 - 2 | 2、5 | 4 | 2 | 190 - 220 | G25 | 630 | 390 | 195 | G32 | 85 | 6、5 | 518 34 31 |
| 7360 a2, 5-2-190 | 2、5 | 4 | 2 | 190 | G25 | 600 | 390 | 195 | G32 | 85 | 6、3 | 518 34 59 |
| 7360 a2, 5 - 3 | 2、5 | 4 | 3. | 190 - 220 | G25 | 630 | 690 | 195 | G40 | 85 | 10、5 | 518 34 32 |
| 7360 a2, 5-3-190 | 2、5 | 4 | 3. | 190 | G25 | 600 | 690 | 195 | G40 | 85 | 10、2 | 518 34 60 |
| 7360 a2, 5 - 4 | 2、5 | 4 | 4 | 190 - 220 | G25 | 670 | 1010 | 205 | G50 | 85 | 14、5 | 518年34 33 |
| 7360 a2, 5-4-190 | 2、5 | 4 | 4 | 190 | G25 | 620 | 1010 | 205 | G50 | 85 | 14日,1 | 518年34 61年 |
| 7360年a6-2 | 6 | 10 | 2 | 260 | G32 | 760 | 400 | 200 | G50 | 91 | 9 | 518年34 |
| 7360年a6-3 | 6 | 10 | 3. | 260 | G32 | 760 | 700 | 200 | G65 | 91 | 15 | 518 34 35 |
| 7360年a6-4 | 6 | 10 | 4 | 260 | G32 | 760 | 1010 | 200 | G65 | 91 | 21 | 518 34 36 |
| 7360年a10-2 | 10 | 16 | 2 | 300 | G50 | 880 | 400 | 200 | G65 | 130 | 19 | 518 34 37 |
| 7360年a10-3 | 10 | 16 | 3. | 300 | G50 | 880 | 700 | 200 | G65 | 130 | 30. | 518年34 38 |
| 7360年a10-4 | 10 | 16 | 4 | 300 | G50 | 930 | 1020 | 510 | 100 * | 130 | 40 | 518 34 40 |
ATs并联联轴器内置不锈钢armatec控制台。控制台通过阀门连接到不锈钢连接盒上。并联联轴器控制台用螺丝安装在墙上。
收集箱由不锈钢圆管制成,以达到最佳的坚固性,例如抗压力冲程。
| 平行耦合 | 数量 | 公寓大楼 | 独户住宅,数量 | 年用量 | ||
|---|---|---|---|---|---|---|
| 不。 | 问n | 问3. | 计 | 数量的公寓 | 房子每组 | max。m³ |
| 7360 a2, 5 - 2 | 2、5 | 4 | 2 | 9 - 30 | 8 - 26 | 3 000 |
| 7360 a2, 5 - 3 | 2、5 | 4 | 3. | 31 - 60 | 27 - 50 | 000年12 |
| 7360 a2, 5 - 4 | 2、5 | 4 | 4 | 61 - 90 | 51 - 80 | 18 000 |
| 7360年a6-2 | 6 | 10 | 2 | 91 - 110 | 81 - 100 | 22 000 |
| 7360年a6-3 | 6 | 10 | 3. | 111 - 200 | 101 - 170 | 40 000 |
| 7360年a6-4 | 6 | 10 | 4 | 201 - 280 | 171 - 250 | 60 000 |
| 7360年a10-2 | 10 | 16 | 2 | 90 - 220 | 76 - 200 | 50 000 |
| 7360年a10-3 | 10 | 16 | 3. | 221 - 380 | 201 - 330 | 80 000 |
| 7360年a10-4 | 10 | 16 | 4 | 381 - 540 | 331 - 460 | 110 000 |
| BV型:与止回阀并联 | ||||||||||
| 输入组件 (括号内数字) |
||||||||||
| AT-nr | 问n | 问3. | 的米数 | 米长度 | 康涅狄格州。 在/ |
墙- - - - - - dist。 |
控制台 | 止回阀 | 球阀 | RSK-No。 |
| 7360 a2, 5-2BV | 2、5 | 4 | 2 | 190 - 220 | G32 | 85 | 7358 - 220 (2) | 7079 - 20 - bv - 1 (2) | 3605 - 20 (2) | 518 34 22 |
| 7360 a2, 5 - 2 bv - 190 | 2、5 | 4 | 2 | 190 | G32 | 85 | 7358 - 190 (2) | 7079 - 20 - bv (2) | 3605 - 20 (2) | 518年34 23 |
| 7360 a2, 5-3BV | 2、5 | 4 | 3. | 190 - 220 | G40 | 85 | 7358 - 220 (3) | 7079 - 20 - bv - 1 (3) | 3605 - 20 (3) | 518 34 24 |
| 7360 a2, 5 - 3 - bv - 190 | 2、5 | 4 | 3. | 190 | G40 | 85 | 7358 - 190 (4) | 7079 - 20 - bv (3) | 3605 - 20 (3) | 518 34 25 |
| 7360 a2, 5-4BV | 2、5 | 4 | 4 | 190 - 220 | G50 | 85 | 7358 - 220 (4) | 7079 - 20 - bv - 1 (4) | 3605 - 20 (4) | 518 34 26 |
| 7360 a2, 5 - 4 - bv - 190 | 2、5 | 4 | 4 | 190 | G50 | 85 | 7358 - 190 (4) | 7079 - 20 - bv (4) | 3605 - 20 (4) | 518年34 27 |
| 7360年a6-2bv | 6 | 10 | 2 | 260 | G50 | 91 | 7358 - 260 (2) | 7079 - 25 - bv (2) | 3605 - 25 (2) | 518 34 28 |
| 7360年a6-3bv | 6 | 10 | 3. | 260 | G65 | 91 | 7358 - 260 (3) | 7079 - 25 - bv (3) | 3605 - 25 (3) | 518年34岁29岁 |
| 7360年a6-4bv | 6 | 10 | 4 | 260 | G65 | 91 | 7358 - 260 (4) | 7079 - 20 - bv (4) | 3605 - 25 (4) | 518 34 30 |
| 7360年a10-2bv | 10 | 16 | 2 | 300 | G65 | 130 | 7358 - 300 (2) | 7079 - 40 - bv (2) | 3605 - 40 (2) | 518 34 31 |
| 7360年a10-3bv | 10 | 16 | 3. | 300 | G65 | 130 | 7358 - 300 (3) | 7079 - 40 - bv (3) | 3605 - 40 (3) | 518 34 32 |
| 7360年a10-4bv | 10 | 16 | 4 | 300 | 100 * | 130 | 7358 - 300 (4) | 7079 - 40 - bv (4) | 3605 - 40 (4) | 518年34 33 |
| 例子:7360 a2, 5-2BVS | ||||
| 在7360年一个 | 2、5 | -2 | 选项 | |
|---|---|---|---|---|
| 不。 | qn |
的米数 |
带止回阀的可调离合器。 |
|
| BVS =带EA型止回阀,版本E1。“斯德哥尔摩Vatten” | ||||
用于建筑物长度为190mm的米的并联联轴器指定为例子在7360-A2,5-190BVS |