gåtil indold.

ArmatecFjernkøleunit.

KøleunittilpassetAnlæggets指定者。

Senderingsudtystyret Leveres EfterBrugerensØnske。尺寸og Komponentvalg Foretages AF Armatec VED Valg AFFølgende型调节特惠信息:丹佛斯,西门子,OG TAC。Ved Valg AF Anden Styring OG CTS Foretages Valget Sammen MedKøber。

Der KanTilkøbesAdgang TilAnlægget过度Internettet OG Armatec Tilbyder Samtidig et Serviceabonement,Som Sikrer最佳漂移。

AleAnlægleveres tilpasses den aktuelle sag med en omfattende teknisk规范Inklusivt et autocad图og en autocad 3维tegning。Dermed Sikres Bygherre,Ingeniøroginstallatøretdedstegrundlag for et godt projekt。Ønskesanlæggetmed specielle tilslutninger,særligeventiler,i en maksimalhøldeo.s.v。Tilpasses预制''DisseØnsker。

Antal Lejligheder. 10-2000
CentralVarmeveksler. Loddet / Pakket Pladevarmeveksler
effekt kw 100> 5000.

produktinformation

anvendelse.

Anvendes Som Veksler MellemFjernkølog BygningensKøleinstallationer。

kvalitetssikring.

AnlæggetLeveresTrykprøvetefterGældende雷王赛Samt CeMærket。

Funktion og Konstruktion.

Kunstruktionen SkerPåGrundlag AF等omfattende Dokumentationsmateriale Beregnet Til最优割尼AFAnlæggetsKomponenter。

Senderingsudtystyret Leveres EfterBrugerensØnske。尺寸og Komponentvalg Foretages AF Armatec VED Valg AFFølgende型调节特惠信息:丹佛斯,西门子,OG TAC。Ved Valg AF Anden Styring OG CTS Foretages Valget Sammen MedKøber。

Der KanTilkøbesAdgang TilAnlægget过度Internettet OG Armatec Tilbyder Samtidig et Serviceabonement,Som Sikrer最佳漂移。

AleAnlægleveres tilpasses den aktuelle sag med en omfattende teknisk规范Inklusivt et autocad图og en autocad 3维tegning。Dermed Sikres Bygherre,Ingeniøroginstallatøretdedstegrundlag for et godt projekt。Ønskesanlæggetmed specielle tilslutninger,særligeventiler,i en maksimalhøldeo.s.v。Tilpasses预制''DisseØnsker。

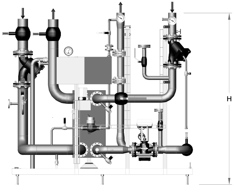
说明我的IDTE Datablad Er et Eksempelpåetanlægpå1500kw。

尺寸

effekt kw H B. L. vægt.
50. 1500 700 1100 100.
100. 1500 700 1200. 150.
200. 1600 750. 1200. 200.
500.

1700

800 1400. 300
1000 1800 900 1600 400
2000年 1900 1000 2000年 500.
5000 2100. 1200. 2500 800
Målimm,vægtikg(data erAnslået)

Teknisk数据

HED ENKELTANLæGLEVERESMED指定MED ANAVELSE AF ALER TEKNISKE数据用于ANLægget。

Data Er Beregnet I et Avanceret Beregningsprogram,Som Siker在AnlæggetsGrundddata的Tryk,Meverthatorer,Effekt M.V。覆盖。

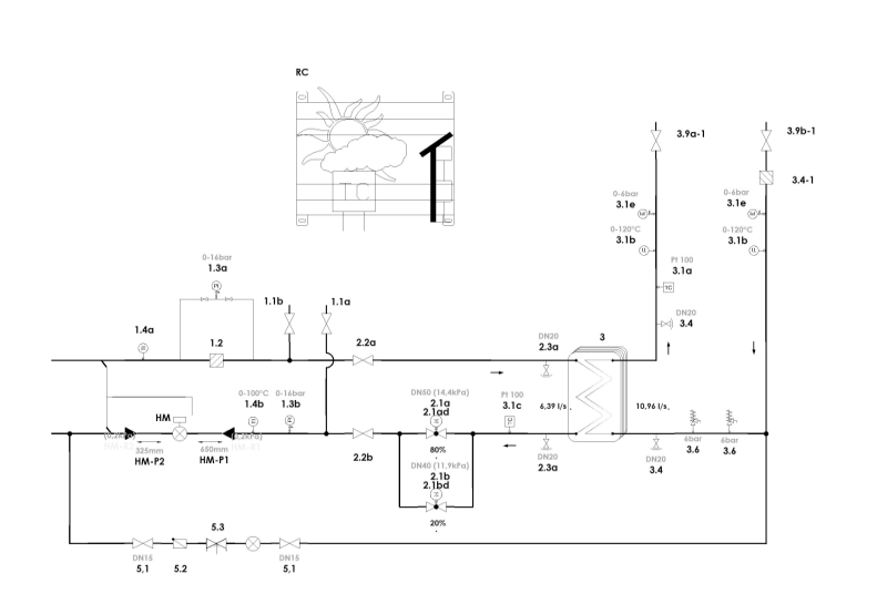
标准Komponentliste.

NR。 Beskrivelse. NR。 Beskrivelse. NR。 Beskrivelse.
rc. 监管 1.3A 压力计Sæt - 2个朋克 3.1A 温度沃勒

rc.

娃娃 1.3B. 压力计 3.1B. Termometer Bimetal.
RC2. Udeføler. 1.4A Termometer Bimetal. 3.1C. 温度沃勒
RC3. Bundplade. 1.4B. Termometer Bimetal. 3.1e 压力计
RC5. hovedafbryder. 2.1A 调节ventil 2v. 3.4 Aftapnningsventil.
RC6. 实习生elkobling. 2.1AD 马达 3.6 Sikkerhedsventil.
RC7. Skab - 内阁 2.1B. 调节ventil 2v. 5,1. afspærringventil.
RC8. Udligningsskinne. 2.1BD 马达 5.2 kontraventil.
RC9. overtyudligning. 2.2A afspærringventil. 5.3 Nåleventil.
1.1A afspærringventil. 2.2B. afspærringventil. 3.4-1 Snavssamler.
1.1B. afspærringventil. 2.3A Aftapnningsventil. 3.9A-1 afspærringventil.
1.2 Snavssamler. 3. varmeveksler. 3.9B-1 afspærringventil.

kontaktpersoner.

ahmed hach​​ach.

Projektingeniør/项目工程师

+45 46 96 00 90
ah@armatec.dk.

詹妮弗Lyngkilde.

Projektingeniør/项目工程师 - Produktansvarlig,Alfa Laval

+45 46 96 00 99
jl@armatec.dk.

肯尼森肯纳森

MarkedSchef Varme / Manager加热系统

+ 45 46 96 00 76
kje@armatec.dk.

Steffen Jansson.

实习生Salg - Teknisk支持/实习生。销售 - 技术。支持

+ 45 46 96 00 77
sja@armatec.dk.

Amalie bytorp olsen.

Projektingeniør/项目工程师 - Produktansvarlig,反射

+ 45 46 96 00 68
abo@armatec.dk.